您当前位置:产品中心 >> 闸阀 >> 国标楔式闸阀
国标楔式闸阀
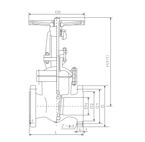
技术参数

产品型号:Z41H

公称通径:DN50~1200mm

压力范围:PN1.0~16.0MPa

工作温度:-29℃~+600℃

主体材质:碳钢、不锈钢、合金钢 

设计与制造:GB12234

结构长度:GB12221

法兰尺寸:GB9113 JB79

压力温度:GB913

试验检验:GB/T13927 、JB/T9092