上海冠环球阀厂专业生产Q347F、Q347H、Q347Y、Q47F固定球阀,以上型号均为手动固定式球阀,包括气动型号:Q647F/H/Y和电动型号:Q947F/H/Y,材质可选铸钢固定球阀、不锈钢固定球阀、锻钢固定球阀、双相钢固定球阀,冠环品牌球阀主要适用于天然气、油品、化工、冶金、城建、环保、制药、食品等行业,其中抗硫系列产品适用于含硫化氢介质、杂质多、腐蚀严重的天然气长输管线。
其主要结构特点有
1.壳体结构
固定式球阀的阀体根据用户需要及实际工况条件的不同可设计为铸造结构、锻造结构及全焊接结构三种形式,其中全焊接结构的球阀主要适用于埋地使用。
2.阀座密封结构
固定式球阀根据压力的大小、介质性质及密封要求的不同而选择球前密封结构、球后密封结构或前球后双密封结构。
3.自动泄压结构
当中腔压力出现异常升高现象时,单密封结构的球阀具有自动泄压机能,而双密封结构的球阀则由阀体上的附加泄压装置进行泄压。
4.密封的紧急救护
固定式球阀和天然气焊接球阀不同,固定球阀的阀座及阀杆密封件出现损伤而引起泄漏时,通过注脂阀注入的密封脂可起瞬时密封作用。
5.防火结构
根据工况及用户的需要,球阀可设计为防火结构。球阀的耐火设计执行API 607、API 6FA及JB/T 6899等标准的规定,一旦发生火灾而使软密封圈烧损时,球阀的防火结构可阻止介质的大量泄漏,防止火灾的进一步扩大。
6.防静电结构
当操作阀门时,由于球体和阀座之间的摩擦,会产生静电电荷并积聚在球体上,为防止产生静电火花,特在阀门土设置防静电装置,将积聚在球上的电荷导出。
7.阻塞与排泄
当阀门处于关闭状态时,上下游侧的阀座使流体阻断,阀体中腔的积滞物可以通过排泄装置进行排泄。
8.锁定装置
在手动球阀的全开、全闭两点位置上设计可上锁的结构,这样,可防止误操作以及不可预知的线路振动而产生的不应有的开关现象,特别是在可燃性介质的石油类和化学药品的生产线,以及阀门在室外配管时,这种设计体现出的优点和实际效果特别好。
9.全通径结构及缩径结构
为满足用户的不同需要,本公司球阀产品有全通径及缩径两种系列。全通径球阀的通道内径与管道内径一致,便于管理清扫,而缩径系列球阀的重量相对较轻,但流体阻力仅为相同口径截止阀的1/7左右,故缩径系列球阀的应用前景较为广阔。
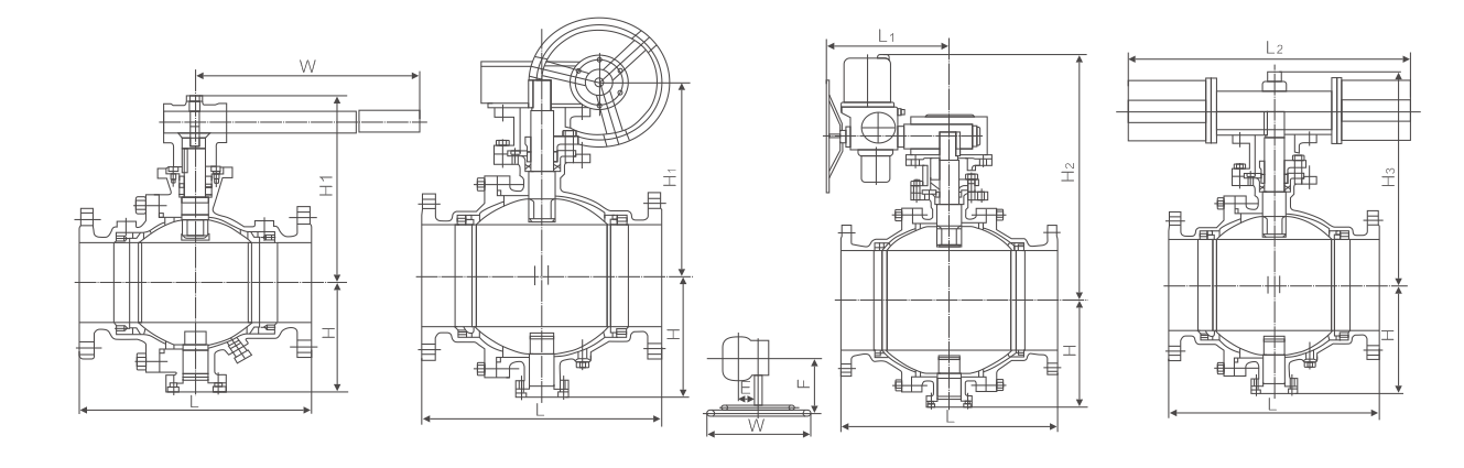
主要外形连接尺寸 PN16
|
DN(mm) |
25 |
32 |
40 |
50 |
65 |
80 |
100 |
125 |
150 |
200 |
250 |
300 |
350 |
400 |
450 |
500 |
600 |
700 |
|
|
d1 |
25 |
32 |
40 |
50 |
65 |
80 |
100 |
125 |
150 |
200 |
250 |
300 |
337 |
387 |
438 |
489 |
591 |
686 |
|
|
L |
140 |
165 |
165 |
203 |
222 |
241 |
305 |
356 |
394 |
457 |
533 |
610 |
686 |
762 |
864 |
914 |
1067 |
1245 |
|
|
H |
50 |
55 |
80 |
102 |
114 |
127 |
152 |
184 |
219 |
273 |
360 |
395 |
430 |
470 |
550 |
580 |
700 |
800 |
|
|
手动 |
H1 |
75 |
85 |
95 |
107 |
125 |
152 |
178 |
300 |
330 |
398 |
495 |
580 |
625 |
670 |
698 |
840 |
1050 |
1100 |
|
E |
- |
- |
- |
|
- |
- |
- |
- |
- |
116 |
116 |
171 |
171 |
257 |
257 |
257 |
150 |
83 |
|
|
F |
- |
- |
- |
|
- |
- |
- |
- |
- |
350 |
350 |
400 |
420 |
400 |
420 |
400 |
410 |
650 |
|
|
W |
160 |
160 |
230 |
230 |
400 |
400 |
650 |
1050 |
1050 |
600 |
600 |
800 |
800 |
800 |
800 |
800 |
800 |
800 |
|
|
WT(kg) |
4.5 |
5.7 |
7.0 |
12 |
16 |
22 |
35 |
58 |
74 |
205 |
322 |
460 |
576 |
864 |
1280 |
1600 |
1600 |
4500 |
|
|
电动 |
H2 |
- |
- |
- |
|
- |
- |
- |
- |
554 |
600 |
652 |
760 |
770 |
830 |
- |
940 |
940 |
1115 |
|
L1 |
- |
- |
- |
|
- |
- |
- |
- |
235 |
235 |
235 |
259 |
400 |
400 |
- |
410 |
410 |
410 |
|
|
气动 |
H3 |
215 |
240 |
264 |
274 |
379 |
389 |
479 |
552 |
666 |
736 |
926 |
1059 |
1127 |
1393 |
1468 |
1538 |
1538 |
1450 |
|
L2 |
200 |
270 |
270 |
270 |
405 |
405 |
576 |
576 |
776 |
776 |
776 |
1060 |
1060 |
1360 |
1360 |
1360 |
1360 |
2840 |
|